2025年8月水回り・内外装リフォーム済 2026/04/02 価格変更 2590万→2550万
高知市潮見台2丁目 中古一戸建 49.86坪 平成7年築 3LDK NO11686
|
| 所在地 | 高知県高知市潮見台2丁目 |
|---|---|
| 交通 | バス(潮見台2バス 停歩5分) |
| 築年月 | 1995/03 | 新築/中古 | 中古 |
|---|---|---|---|
| 面積 | 101.02m² | 計測方式 | |
| バルコニー | 向き | ||
| 建物階数 | 地上2階 | 部屋階数 | |
| 建物構造 | 木造 | ||
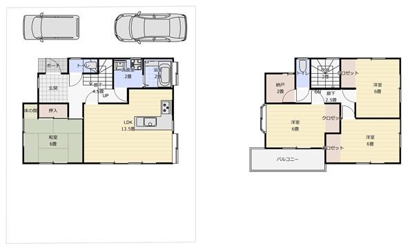
| 間取内容 |
2F6洋・6洋・6洋 1F6和・13.5LDK |
||
| 駐車場 | 取引態様 | 仲介 | |
| 引渡/入居時期 | 相談 | 現況 | 空家 |
| 地目 | 宅地 | 用途地域 | 第一種低層住居専用地域 |
| 都市計画 | 市街化区域 | 地勢 | 高台 |
| 土地面積 | 164.85m² | 土地面積計測方式 | |
| 建ぺい率 | 60% | 容積率 | 100% |
| 土地権利 | 所有権 | 接道状況 | 一方 |
| 接道方向1 | 北 | 接道間口1 | |
| 周辺環境 |
介良潮見台小学校 介良中学校 |
||
| 設備・条件 | |||
| 物件番号 | 11680 | 掲載期限日 | 2026/01/31 |
| 自社物 | 状態 | 売出中 | |
Loading...
※物件掲載内容と現況に相違がある場合は現況を優先と致します。
問合せ先
フレンドホーム
〒781-5108 高知県高知市潮見台2-1405
TEL 088-881-5090
営業時間 AM9:00~PM6:00 定休日 不定休
宅建免許番号: 高知県知事 (3) 第2722号


















